

The Ellacott
Key Features
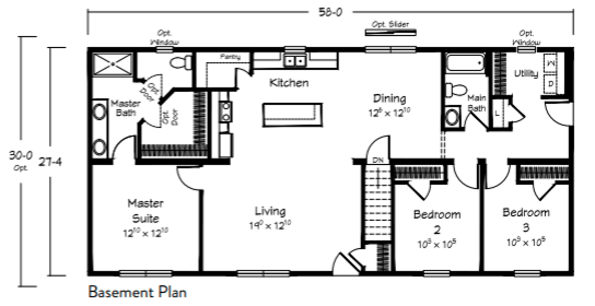
The Ellacott is designed to balance contemporary aesthetics with everyday functionality, offering 1,585 sq. ft. of thoughtfully curated living space with 3 bedrooms and 2 bathrooms. With its bold styling and our carefully crafted design packages, this home can be tailored to reflect your unique preferences.
.png)
Design Your Own
Coming Soon To This ModelDesign & Craftsmanship
Our team brings together thoughtfully assembled design packages to make The Ellacott uniquely yours. Drawing on the expertise of our land planners, home designers, and construction specialists, you can customize this home by selecting from curated options and working closely with our team to bring your vision to life.
The design stems from a desire to combine contemporary minimalism with warmth and inviting livability. The vision is a home that feels bright, calm, and welcoming, tailored for modern everyday living.
The Ellacott features a curated selection of high-quality materials that enhance its contemporary design. From energy-efficient windows to sleek, durable finishes, every element is chosen to ensure long-lasting beauty and functionality.
With 1,585 sq. ft. of space, The Ellacott offers an open and adaptable layout designed for modern living. Our design packages provide a variety of finishes and features, allowing you to customize your home to reflect your personal style and preferences.
This home showcases crisp modern geometry with expansive windows and a clean façade that draws the eye. The simple, refined exterior and balanced proportions create a sense of elegance and understated style.
Our process begins by helping you select the perfect home model for your lifestyle. You’ll then collaborate with our home designers to personalize your space, tailoring finishes, layouts, and features to your preferences and work with our 3D visualization team to see your vision come to life. Finally, our civil engineers and land planners ensure the home is optimized for your specific property, accounting for topography, site preparation, utility connections, and zoning requirements

Featured Homes
Our comprehensive home collection delivers the best of pre-engineered modular designs, offering streamlined construction and exceptional value. You'll find the perfect balance of quality, style, and innovation to bring your vision to life.


















-min.png)



%20(1).png)


%20(1).png)
%20(1).png)
.png)